Betreibungsamt Hottingen

Büroausbau des Betreibungs- und Stadtammannamt

 
 

Projektbeschreibung

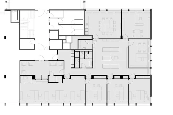
Das neue Betreibungs- und Stadtammannamt soll in einem bestehenden Bürobau aus den 70er Jahren am Klusplatz im Kreis 7 der Stadt Zürich untergebracht werden. Die für das Betreibungsamt vorgesehene Mietfläche wurde auf Rohbau II zurückgebaut und erstreckt sich über ein Geschoss des Bestandbaus, dessen Gebäudehülle und Tragstruktur vollständig erhalten bleibt. Das Innenraumausbaukonzept geht auf die Bedingungen des Bestandes ein und passt die durch Leichtbauwände erfolgende Raumaufteilung an die vorhandenen Fassadenachsen sowie die öffenbaren Fensterflügel an. Auch die vorhandenen Installationen und Steigleitungen werden für den Umbau bestmöglich berücksichtigt.

Auf das repräsentative Bedürfnis im Empfangs- sowie Kundenbereich wird mit einer gestalteten Wand aus Eschenholz reagiert, die massgeblich zur ansprechenden optischen Gestaltung der Innenräume beiträgt.

Darüber hinaus zoniert und strukturiert die Schrankwand das Büro. Sie empfängt den Kunden und begleitet ihn gegebenenfalls auch weiter zu den Büros der Pfändungsbeamten.

Die Wandabwicklung nimmt unterschiedliche Funktionen auf, wie den Diskretschalter und die Einbauschränke in den Büros der Pfändungsbeamten. Über den Wandschränken befindet sich ein Oberlichtstreifen aus Glas. Eine interne Zirkulations- und Archivzone wird über das Oberlichtband natürlich belichtet und beherbergt das Tagesarchiv für alle Mitarbeitenden.

Alle ständigen Arbeitsplätze und Büroräume liegen an der Fassade und können somit natürlich belüftet und belichtet werden. Entlang der Fassade läuft der bestehende Brüstungskanal (Ringlüftung), der lediglich neu verkleidet wird und die Fensterbank ausbildet.

Die Büros der Pfändungsbeamten sind aus Sicherheitsgründen untereinander mit einer Tür verbunden. Zudem wird im Konzept den Sicherheitsanforderungen mit doppelten Zugangstüren Rechnung getragen.

Ebenso sorgt zwischen Kundenbereich und Grossraumbüro ein Zutrittskontrollsystem, verglaste Schalter, Videoüberwachung beim Eingang, sowie Nottaster in den Büros für die Erfüllung der Sicherheitsstandards.

Im gesamten Perimeter ist eine durchgehende Abhangdecke (Akustikdecke) vorgesehen, welche auch die Deckenleuchten aufnimmt. Im Deckenzwischenraum werden Installationen und Leitungen geführt. Bodenbeläge sind durchgehend aus Linoleum mit Sockelleiste vorgesehen, mit Ausnahme der Nassräume. Das sorgfältig abgestimmte Farb- und Materialkonzept unterstützt die seriöse Funktion des Betreibungsamtes und trägt gleichzeitig zu angenehmen Arbeitsbedingungen bei.

 

Projektbilder

 

Pläne

 

Projektdaten

Planerwahlverfahren, 1. Rang
Auftraggeber: Amt für Hochbauten Zürich
Leistungsphasen: 3-5 lt. SIA 112
Bruttofläche: 348 m2
Fertigstellung: 03/2017
Fotos: Roger Frei