Wohnhausanlage Brunn am Gebirge

Wettbewerb Neubau Wohnbauten

 
 

Projektbeschreibung

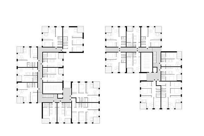
Das Grundstück an der Peripherie von Brunn am Gebirge knüpft im Südwesten an die kleinteilige Vorortstruktur an. Der direkte südliche Nachbar ist ein Landeskindergarten. Im Norden wird die Parzelle durch die Wiener Außenring-Autobahn, und im Osten durch die Bekleidungsanstalt des Heeres begrenzt. Die zur Verfügung stehende bebaubare Fläche wird auf zwei Bauplätze aufgeteilt. Entsprechend entstehen zwei eigenständige Häuser mit je zwei Vollgeschossen und einem Dachgeschoss – die Umsetzung in zwei Bauabschnitten ist problemlos möglich.

Städtebaulicher Anknüpfungspunkt ist die aufgelockerte Einfamilienhausstruktur im Süden und Westen des Grundstücks. Es entstehen zwei Solitäre, die zwar „verwandt“ sind, aber doch eine eigene Identität besitzen. Wiedererkennbare Gebäudeproportionen sowie die zugrundeliegende Logik der Typologie setzen die beiden Baukörper in einen starken Bezug zueinander. Die – im Verhältnis zur Nachbarbebauung – großvolumigen Baumassen werden bewusst heruntergebrochen und aus kleineren Gebäudeteilen zusammengesetzt. Trotz des erheblichen Maßstabssprungs entsteht so ein kleingliedriges Ensemble, welches sich gut in die Umgebung einfügt.

Der „kleine Bruder“ im Osten besteht in der Grundformation aus zwei zusammengesetzten Gebäudeteilen, die „große Schwester“ im Westen wird um einen dritten Gebäudeteil ergänzt.

Durch die geschickte Anordnung von Kreuzdachformen auf den zusammengesetzten Körpern entstehen spannungsvolle Dachlandschaften. Diese garantieren nicht nur eine optimale Ausnutzung der Wohnnutzfläche, sondern tragen auch maßgeblich zur Identität der Gebäude bei. Zwischen den Baukörpern spannt sich eine gemeinsame beruhigte Mitte auf, über welche die Häuser fußläufig erschlossen werden.

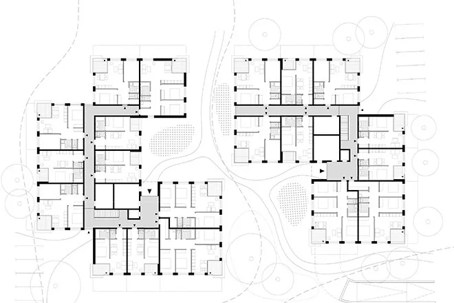
Im südlichen Teil und zur Grenze mit dem Landeskindergarten liegt eingebettet der Spielplatz. Beide Häuser setzen sich aus zwei Vollgeschossen und einem Dachgeschoss zusammen, alle drei Geschosse sind jedoch vollständig deckungsgleich. Dies wird möglich durch die Anordnung der Loggien bzw. Dachterrassen an den Gebäudeecken, welche somit die Flächen mit geringer Raumhöhe geschickt besetzten.

Unter Berücksichtigung der baurechtlich zulässigen Dachkubatur, kann die Wohnungstypologie auch im Dachgeschoss vollständig zur Wohnnutzfläche herangezogen werden. Die Typologie des Regelgeschosses selbst ist differenziert und setzt sich aus B-, C- und D-Wohnungen zusammen. Hauptbaustein der Wohnungstypologie ist eine kompakte und flexibel nutzbare 60 m2 C-Wohnung, die – um ein Zimmer ergänzt – zu einer 80 m2 D-Wohnung erweitert wird. Die C und D-Wohnungen sind ausnahmslos zweiseitig orientiert und nehmen die Gebäudeecken der Häuser ein.

Alle Grundrisse sind funktional und erlauben alltagstaugliche Anpassbarkeit entsprechend den barrierefreien Anforderungen des „anpassbaren Wohnbaus“. Die Wohnräume zeichnen sich durch schöne Ausblicke, gute Orientierung und einfache Möblierbarkeit mit Normmöbeln aus.

Alle Wohnungen verfügen über gut integrierte Loggien, die im Erdgeschoss durch einen Garten-Annex ergänzt werden. Die Freiräume im Erdgeschoss werden durch verschiedene „Pufferelemente“ optisch von den allgemein zugänglichen Flächen abgegrenzt – z.B. durch massive Brüstungen, vorgelagerte Bankelemente und höher wachsende extensive Gräser- und Staudenflächen. Private Gärten der Erdgeschosswohnungen wirken durch eine sanfte Profilierung wie geprägt in die fließende umgebende Wiesenlandschaft. Sie erhalten auf diese Weise eine sanfte Abgrenzung zu den gemeinschaftlichen Bereichen.

Durch die Anordnung der Baukörper werden im Areal hofartige Aufenthaltsbereiche aufgespannt, die als integrierender Bestandteil des Gesamtprojektes verstanden werden. Die einzelnen Teilräume durchfließen als zusammenhängender Freiraum die Erdgeschossebene und bilden einen angenehmen Dialog mit den angrenzenden EG-Räumen.

 

Projektbilder

 

Pläne

 

Projektdaten

Verhandlungsverfahren
Auftraggeber: “Neue Heimat” Gemeinnützige Wohnungs- und Siedlungsgesellschaft GmbH
Nettonutzfläche: 3.420 m²
Visualisierung: studiohometown (www.studiohometown.de)