Primarschule Jonen

Studienauftrag Schulerweiterung

 
 

Projektbeschreibung

Durch den Wechsel des Schulsystems zu modernen Unterrichtsformen besteht in der Gemeinde Jonen der Bedarf an zusätzlichem Schulraum, der auf dem heutigen Schulareal realisiert werden soll. Ziel war es, die neu zu schaffenden Funktionen – Schule und Mehrzwecksaal – in einer gut vernetzten Einheit zusammenzubinden.

Das Gebäudekonzept stützt sich grundlegend auf die vorgefundenen Gegebenheiten des Ortes. Der Mehrzwecksaal bildet einen Rücken an der nordöstlichen Ecke der Parzelle und schliesst den zentralen Pausenhof zur Strasse hin optisch ab.

Die Schulerweiterung wiederum orientiert sich nach innen zur gemeinsamen Mitte des Schulareals. Der neu gestaltete Pausenhof dient als übergeordnete Begegnungszone, welche auch die bereits bestehenden Freianlagen und Sportflächen der Schule miteinander verzahnt.

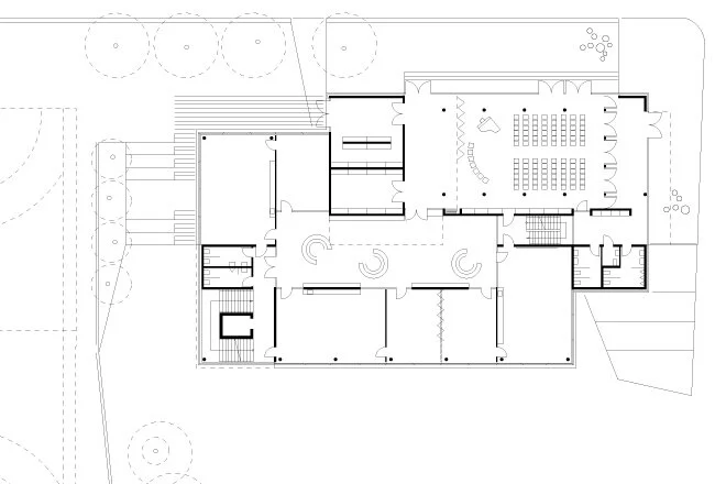
Sämtliche Klassenzimmer sind Richtung Südwest orientiert und optimal belichtet. Die Organisation der Schulräume basiert auf einem einfachen statischen Prinzip und dient der flexiblen Anordnung der Schulräume. Jeweils drei Klassencluster bestehend aus Klassenzimmer und Gruppenraum sind pro Geschoss zusammengefasst.

Diese drei Cluster teilen wiederum einen übergeordneten zentralen Innenraum, welcher für übergeordnete und klassenübergreifende Aktivitäten genutzt werden kann.

Wir verstehen diesen Raum als „Marktplatz“, als Ort der Kommunikation und des Austauschs. In seiner Mitte eröffnet er eine interne Verbindung zum Mehrzwecksaal und den Tagesstrukturen. Wie ein großer Esstisch wird er zum Mittelpunkt des Schulalltags.

 

Pläne

 

Projektdaten

Studienauftrag, 2. Rang
Auftraggeber: Gemeinde Jonen
Nettonutzfläche: 1250 m²
Visualisierung Viktor Freytan