Primarschule Bütschwil

Primarschule Bütschwil - Schulraumerweiterung

 
 

Projektbeschreibung

Durch eine behutsame Positionierung des Neubaus als ruhigen, kompakten zweigeschossigen Baukörper werden klare und gut nutzbare Aussenräume geschaffen: Im Süd-Osten, abgewandt von der Mittendorfstrasse, entsteht ein grosszügiger, naturnaher Aussenbereich für den Kindergarten mit optimaler Morgen- und Nachmittagssonne. Im Westen, gegenüber vom bestehenden Lehrerparkplatz wird eine ca. 600m² grosse Fläche für die benötigten Parkplätze geschaffen. Der bestehende Baumbestand dient als natürlicher Sonnen- wie Sichtschutz zu Freiflächen der

angrenzenden Nachbarschaftsbebauung und wird durch die Positionierung des Neubaus weitestgehend erhalten.

Immer höhere pädagogische Anforderungen werden an Bildungsbauten gestellt. Dazu ist eine Gebäudestruktur notwendig, die verschiedene Lehr- und Lernformen zulässt und eine Öffnung für neue Unterrichtsformen ermöglicht. Räume - auch Pausen- und Verkehrsflächen - sollen weitgehend nutzungsneutral und für verschiedene Aktivitäten gedacht werden.

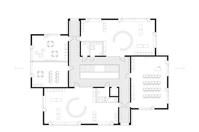
Gleichzeitig gilt es einen vielfältigen Ort zu schaffen, der bereits die Kleinsten inspiriert und fördert. In diesem Sinne setzt sich der Grundriss unseres Chleeblättlis aus 4 nutzungsneutralen Haupträumen zusammen. Diese werden geschickt um eine gemeinsame Mitte angeordnet. Identisch in ihrer Grösse sollen spätere Raumroschaden ermöglicht werden. Ergänzt werden diese Räume durch separat begehbare Nebenräume, die nach Bedarf von der Gruppe abgetrennt werden können. Durch ein Versetzen der Kleeblätter werden alle Räume optimal von zwei Seiten belichtet und belüftet.

 

Projektbilder

 

Pläne

 

Projektdaten

öffentliche Ausschreibung, 1. Rang
Auftraggeber: Politische Gemeinde Bütschwil- Ganterschwil
Nettonutzfläche: 1.072m²
Fertigstellung: 07/2021
Visualisierung: k18