Schulcampus Heiget

Neubau Mehrzweckhalle mit Bühne und Schwimmbad

 
 

Projektbeschreibung

Das bestehende Schulareal setzt sich aus einem heterogenen Flickwerk von Gebäuden unterschiedlichen Alters zusammen.

Mit dem Neubau einer Mehrzweckhalle mit Bühne und einem Schulschwimmbad soll nicht nur dem zukünftigen Bedarf entsprochen werden, sondern auch die städtebauliche Situation geklärt und aufgewertet werden.

Die neue Mehrzweckhalle schließt die Schulanlage gegen Nordosten ab und spannt gleichzeitig einen neuen zentralen Pausenplatz mittig im Schulareal auf. Der Allwetterplatz wird umgelegt und dadurch für alle Altersklassen stärker nutzbar im Pausen- und Schulbetrieb.

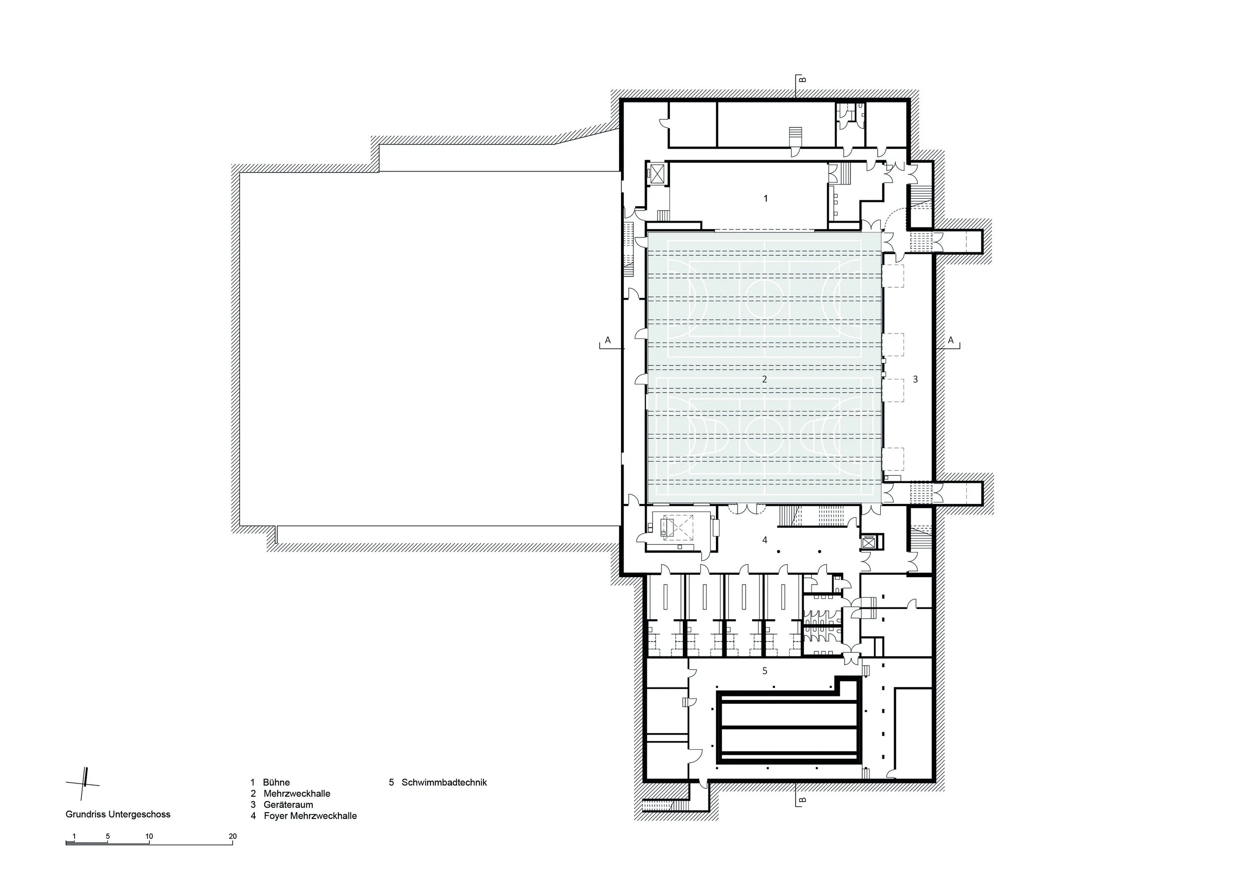
Durch die städtebauliche Konzentration der Sportstätten mittels direktem Anbau werden einerseits Synergien mit der Dreifachturnhalle generiert, andererseits bestehende Defizite behoben. Durch zusätzliche, geringfügige Umstrukturierung im eingeschossigen Bestandsbau entstehen optimale Betriebsabläufe für Schule, Vereine und Veranstaltung.

Trotz der großen Volumetrie der Hallen wirkt das Ensemble durch die Zäsur des 1-geschossigen Verbindungsbaus städtebaulich verträglich und optimal in die Umgebung integriert. Der gewählte Standort für die neue Mehrzweckhalle trägt der Vision 2044 Rechnung und lässt Handlungsspielraum für zukünftige Entwicklungspotenziale. Die von uns ausgewiesenen Neubaupotenziale für Primar- und Sekundarschule sehen eine Konzentration der Schulräume in unmittelbarer Nähe zu den Bestandsschulbauten vor.

Im Sinne des „Weiterbauens“ werden gut funktionierende Platzsituationen erhalten und die Hauptkörper optimal Ost/West ausgerichtet.

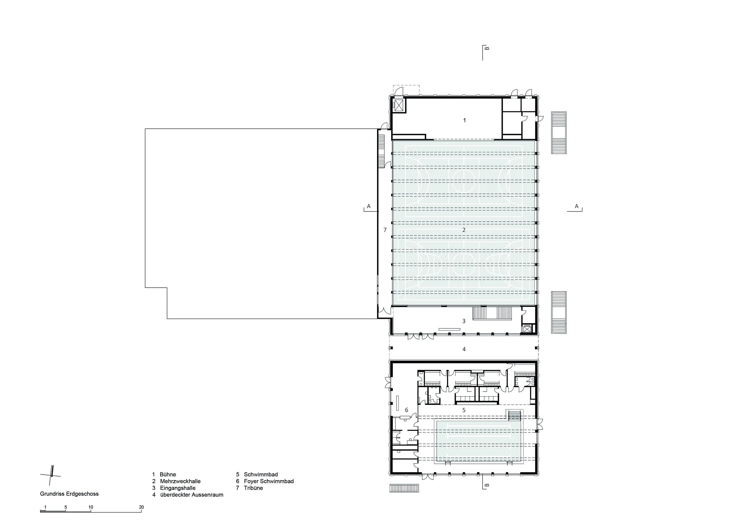
Jegliche Anlieferung für den Unterhalt der Turnhallen (Catering, Belieferung Holzschnitzelanlage, Anlieferung Bühne, Anlieferung Schwimmbadtechnik und Chemie) erfolgt rückwärtig über die Chatzenrainstrasse. Um den Ablauf zu optimieren wird ein großzügiger Wendekreis vorgesehen, so dass, falls die Strasse nicht ausgebaut wird, der Einbahnverkehr adäquat auf dem Grundstück wenden kann. Der Hauptzugang zur neuen Mehrzweckhalle erfolgt über die Schulhausstrasse im Süden. Durch die unmittelbare Nähe zum bestehenden Parkplatz sind kurze Wege auch für Externe garantiert. Der neu gestaltete und teilweise überdachte Vorplatz mit angeschlossenem zentralen Foyer wird zum repräsentativen Eingangsbereich des Schulareals.

 

Projektbilder

 

Pläne

 

Projektdaten

Selektives Vergabeverfahren
Auftraggeber: Gemeinde Fehraltorf
Nettonutzfläche: 3.987 m²
Visualisierung: K18