Wohn- und Pflegeheim Plaids in Flims

Wettbewerb Umstrukturierung und Erweiterung

 
 

Projektbeschreibung

Das bestehende Wohn- und Pflegeheim Plaids soll aufgrund steigender Nachfrage nach Heimplätzen erweitert werden. Da der Bestand einen gewissen Sanierungsbedarf vorweist, soll im Rahmen der geplanten Erweiterung eine Aktualisierung des bestehenden Baus erfolgen.

Ziel des Entwurfes ist Bestandshaus und Erweiterung zu einem formalen und funktionalen Ganzen wachsen zu lassen. In diesem Sinne verstehen wir den Neubau nicht als bloßes additives Element,

sondern als Glied welches den festen Verbund zwischen Ort, Bestehendem und Neuem herstellt.

In Anlehnung an den Charakter der sie umgebenden Felslandschaft werden zwei massive Baukörper platziert, welche das Bestandshaus an seiner südlichen und seiner nördliche Front flankieren. Die entstehende Figur berücksichtigt Maßstab und Ausrichtung der angrenzenden Bauten und macht in ihrer Präsenz trotz allem die Sonderstellung des Altenheims bewusst.

Im Gegensatz zu der bestehenden jähen und unvermittelten Zugangssituation von Norden, soll die neue Zufahrt von Osten Zeit zum Erkennen und Ankommen gewähren. In Fortsetzung dieser Bewegung richten sich die beiden Körper in einer kontinuierlichen Geste auf und ruhen auf dem bestehenden östlichen Dach.

 

Projektbilder

 

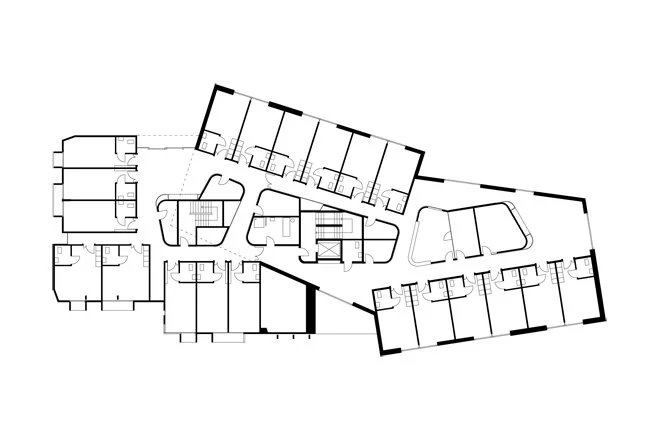
Pläne

 

Projektdaten

Wettbewerb im selektiven Verfahren, 4. Platz
Auftraggeber: Stiftung Wohn- und Pflegeheim Plaids
Nettonutzfläche: 4.520 m²