Kinderbetreuungszentrum Maria Enzersdorf

Kinderbetreuungszentrum Maria Enzersdorf - Neubau und Zubau

 
 

Projektbeschreibung

Zuzug und die steigende Geburtenrate in der südlich von Wien gelegenen Gemeinde erforderten die Schaffung von mehr und vor allem zeitgemäßen Kinderbetreuungseinrichtungen. 2008 wurde daher ein geladener Wettbewerb für ein neues Kinderbetreuungszentrum ausgelobt, welches die bestehende Gründerzeitschule um acht Volksschulklassen, einen Kinderhort und einen Kindergarten mit Küche erweitert.

Der Entwurf der Arbeitsgemeinschaft MAGK illiz bricht das Bauvolumen in L-förmige Körper, die so ineinander verschachtelt sind, dass in den Zwischenräumen unterschiedliche Orte und Freiräume zum Spielen und Lernen gebildet werden. Innerhalb des zweigeschossigen Ensembles ermöglicht eine einfache Wegführung zwischen den Funktionsbereichen eine gute Orientierbarkeit und schnelle Wege für Kinder und Erwachsene. Der neue Haupteingang der Schule ist gleichzeitig Aula und verbindet das Bestandsschulhaus mit dem Neubau.

Die Fassade ist als „gepixelte“ weiße Hülle entwickelt. Format und Fügemuster der „Fensterpixel“ entsprechen der jeweiligen Nutzung, wodurch die dahinterliegenden Räume von außen ablesbar werden und der Wiedererkennungswert der einzelnen Gebäudeteile verstärkt wird. Im Gegensatz zur kontrastreichen Fassade, wird die Gestaltung der Innenräume durch variierende, feinabgestimmte Farb- und Materialkombinationen geprägt.

 

Projektbilder

 

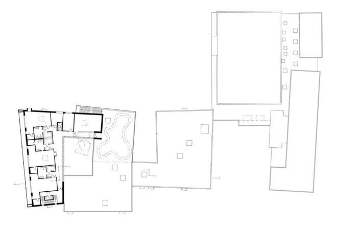
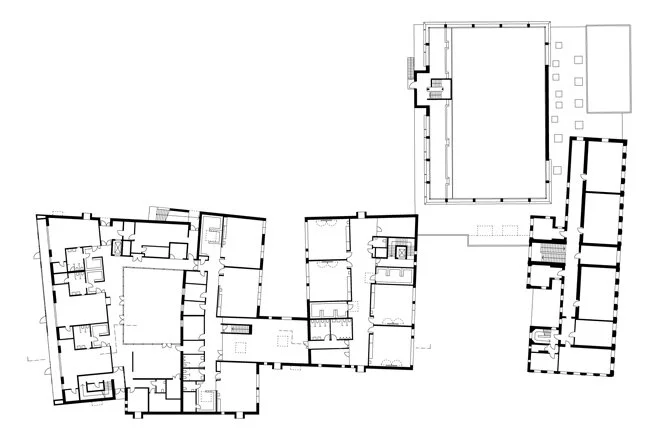
Pläne

 

Projektdaten

Wettbewerb, 1. Preis
Auftraggeber: Marktgemeinde Maria Enzersdorf
Nettonutzfläche: 4100 m²
Fertigstellung: 08/2011
Partner: MAGK architektur
Fotos: Hertha Hurnaus