Einfamilienhaus Perchtoldsdorf

Einfamilienhaus Perchtoldsdorf bei Wien - Sanierung Jugendstilvilla

 
 

Projektbeschreibung

Die 1911 erbaute dreigeschossige Villa wurde in den 1970er Jahren stark verändert und befand sich in einem sehr sanierungsbedürftigen Zustand. Seit 2012 wurde sie umfassend saniert und für die dreiköpfige Familie umgebaut. Im Zuge dessen wurden verschiedenste über die Jahre hinweg angewachsene Nebengebäude und Dachvorsprünge rückgebaut und das ursprüngliche Gebäude schonend wieder freigelegt. Eine vorgelagerte offene Holzveranda ersetzt den bereits im Rahmen früherer Modernisierungen abgetragenen originalen hölzernen Vorbau, der so typisch ist für die Wienerwaldregion.

Idee war es, die traditionelle Veranda neu zu interpretieren und dem ansonsten schonenden Umgang mit der äußeren Bausubstanz ein markantes Element entgegenzusetzen. Die tragende Holzkonstruktion wird durch ein Geflecht aus lasierten Lärchenholz-Riemen allseitig umhüllt. Die unterschiedliche Dichte der Lattung wird den diversen Nutzungsaspekten der neuen Veranda gerecht und erzeugt spannende Lichtsituationen auf den angrenzenden Oberflächen.

Als Raum dient sie sowohl der Erweiterung des Wohnraums nach außen, als auch als vorgelagerte Pufferzone zum Eingangsbereich. Im Gegensatz zu den äußeren Rückbaumaßnahmen, wird im Inneren die alte Zimmerstruktur aufgebrochen und zu großen, fließenden Räumen zusammengelegt. Da der alte Bau sich hauptsächlich Richtung Straße orientiert, werden die Südfassade in Richtung Garten und die Westfassade mit Blick in die Weinberge durch große Fensterflächen geöffnet.

 

Projektbilder

 

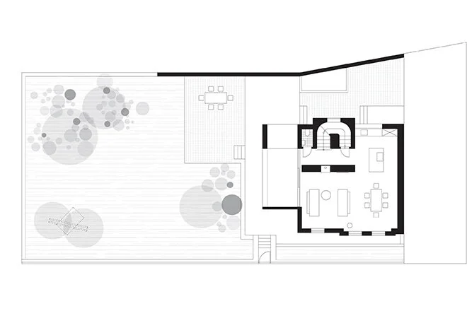
Pläne

 

Projektdaten

Direktauftrag
Auftraggeber: Privat
Nettonutzfläche: 207 m²
Fertigstellung: 06/2013
Fotos: Hertha Hurnaus