Werkhof Ricken

Wettbewerb

 
 

Projektbeschreibung

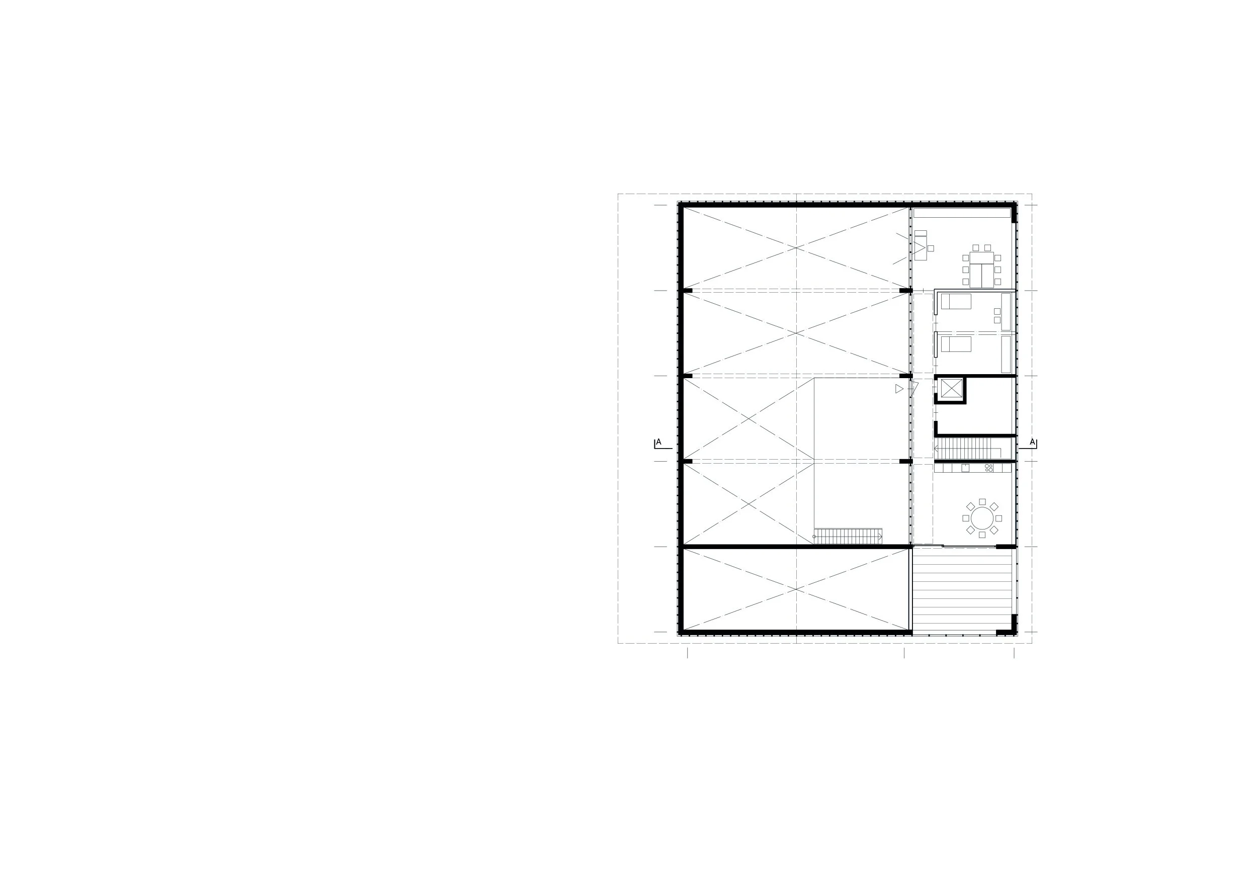
Städtebaulich ist die Gemeinde Ricken durch Solitärbauten geprägt, welche sich entlang der Uznacher- und Rapperswilerstrasse aufreihen. Kernfunktionen eines Werkhofes sind eine hohe Funktionalität im Innen- wie im Aussenraum. Besonderes Augenmerk muss daher auf das Verkehrskonzept gelegt werden für alle unterschiedlichen Verkehrsströme, im Besonderen auch auf den Winterdienst (Silo), welches idealerweise den normalen Werkhofbetrieb nicht stört. Damit sich das Volumen des Werkhofes gut in die Umgebungsbebauung einfügt, wird das Gebäude in Anlehnung an traditionelle, landwirtschaftliche Gebäude mit Satteldach und in Holzbauweise projektiert. Gleichzeitig erhält der Werkhof durch eine zarte Rhythmisierung der Holzfassaden eine zeitgemässe Ausdrucksweise. Das unterschiedliche Spiel im Ober- und Untergeschoss bricht das grosse Volumen. Gezielt gesetzte grossmassstäbliche Öffnungen geben dem Körper sein markantes Erscheinungsbild. Die Tore im Westen, die Fensterbänder im Osten sowie Oberlichter sorgen für eine natürliche Belichtung aller Räumlichkeiten ohne Einschränkung der Funktion. Verglasungen zwischen der Fahrzeughalle und dem Personaltrakt lassen spannende innenräumliche Ein- und Durchblicke zu und belichten die Fahrzeughalle von zwei Seiten. Im Inneren des Gebäudes wird durch die Materialisierung in Holz ein warmes, angenehmes Raumklima erzeugt.

Zugunsten eines optimierten Verkehrskonzeptes sowie einer guten Einzäunung des Geländes positionieren wir den Solitärbau des Werkhofs am östlichen Rand des Grundstückes. Hierdurch entsteht ein tieferer Wendeplatz, der nicht nur das Wenden eines LKWs in einem

Zug ermöglicht, sondern auch alle übrigen Rangierbewegungen deutlich erleichtert. Wichtig ist die Separierung der unterschiedlichen Verkehrsströme, so behindert das Anfahren des Silos nicht den normalen Werkhofbetrieb, die Mitarbeiter PP vom Werkhof sind separat vor dem Personaltrakt angeordnet. Das Gebäude wird im Inneren funktional in einen Fahrzeughallentrakt und die im Osten anliegenden, zweigeschossigen Personalräume gegliedert. Die Anordnung der Personalräume längs zur Fahrzeughalle ermöglicht kurze Wege aus jeder Fahrzeugbox zu den Neben- und Personalräumen. Sinngemäss ist der Erschliessungsgang des Nebentraktes entlang der Fahrzeughalle angeordnet, so dass eine optimale Nutzung dessen von beiden Seiten möglich ist. So kann auch bei voll besetzter Fahrzeughalle die fussgängige Verbindung zu jeder Zeit sichergestellt werden. Der „Doppelnutzung“ entsprechend wird auch das Treppenhaus und der Lift zentral im Gebäude angeordnet, so dass diese sowohl von der Fahrzeughalle als auch vom Personal genutzt werden können. Der Lift verfügt über eine direkte Anbidnung an das Materiallager. Alle Aufenthaltsräume (Aufenthalts-, Ruhe- und Besprechungsraum) sowie die Terrasse sind abgewandt vom Lärm im ersten Obergeschoss angeordnet, die Terrasse ist gegen Süden ausgerichtet. Durch grosszügige Bandfenster im 1. Oberschoss sind alle Räume lichtdurchflutet und natürlich belichtet. Im Erdgeschoss befindet sich unmittelbar neben dem Eingang der Garderobentrakt mit den sanitären Anlagen. Im Norden befindet sich unmittelbar an die Fahrzeughalle angeschlossen das Lager für Paletten und Baumaterial.

Dieses kann mittels eines Tores zusätzlich auch von Aussen angeliefert werden. Im Aussenraum werden die Mulden entlang der Rapperswilerstrasse angeordnet, so dass diese durch den natürlichen Geländeverlauf (ca. 1m Höhenunterschied) im Strassenbild weniger in Erscheinung treten. Eine Umzäunung schliesst das Gelände elegant ab.

Durch eine vorfabrizierte Holzbauweise können Kosten und Bauzeit gespart werden. Durch das fehlende Untergeschoss kann auf aufwendige Tiefbauarbeiten verzichtet werden. Die Bodenplatte sowie der Sockel des Gebäudes werden in Beton materialisiert. Dieser generiert einerseits den Feuchteschutz der Holzkonstruktion und anderseits stellt er auch einen Anprallschutz für das Werkgelände dar. Der stützenfreie Hallentrakt besteht aus Brettschichtholz-Rahmen, welche mit einem Achsabstand von ca. 5 m, die vorhandene Spannweite von ca. 15 m problemlos überspannen können. Zur Sicherstellung eines effizienten Tragsystems wird der First mit eingeleimten Gewindestangen verstärkt. Das Hallendach wird mit mehrschichtigen Brettsperrholzplatten, überspannt. Diese Platten gewährleisten sowohl die vertikale Abtragung der Lasten wie auch die Aussteifung des Hallendaches. Die Seitenwände der Halle werden mittels doppelbeplankten Rahmenkonstruktion (Rahmenbauweise) vorgesehen. Der Bürotrakt ist aus Sicht der Statik wesentlich einfacher gehalten. Zur Überbrückung der Spannweite von ca. 6 m, wird sowohl das Dach wie auch die Decke mit Brettsperrholzplatten, überspannt. Die Wände des Bürotraktes werden ebenfalls in Rahmenbauweise hergestellt.

 

Projektbilder

 

Pläne

 

Projektdaten

Wettbewerb, beschränkt
Visualisierungen: k18