Trainingsschwimmhallen Wien

Hallenprototyp als Erweiterung der Kombibäder Simmering und Großfeldsiedlung

 
 

Projektbeschreibung

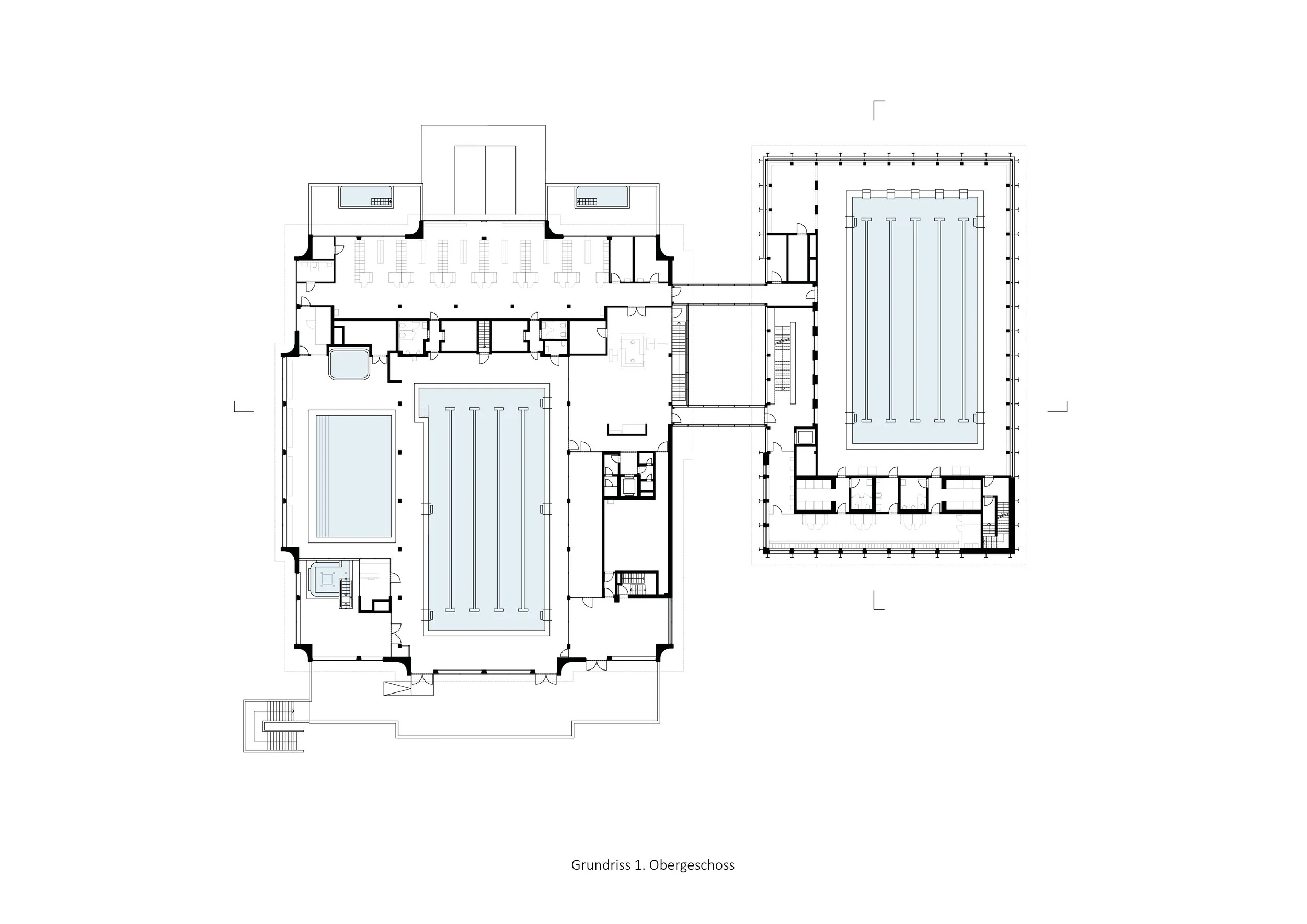
Die neue Trainingsschwimmhalle für das Kombibad in der Wiener Großfeldsiedlung besetzt mit kompaktem Fußabdruck Teile des früheren Parkplatzes und knüpft über zwei freitragende Brücken an den Bestand an. Zwischen Alt- und Neubau entsteht eine grüne Gasse, welche die BesucherInnen zum neuen Haupteingang unter den Brücken leitet. Bereits beim Näherkommen erspäht man durch die verglaste Fassade eine sich hochwindende Treppe, die auf die Beckenebene im 1. Obergeschoss führt. Von hier vernetzen die beiden Brücken das neue Foyer mit der Kassahalle im Bestand und schaffen einen zusammenhängenden Erschließungsraum, der die Besucherströme betrieblich entflechtet, die unterschiedlichen Funktionsbereiche jedoch visuell miteinander verwebt.

Das sachliche Holztragwerk der fast 6m hohen Schwimmhalle wird durch eine raumhohe Glasfassade umhüllt. Davor wölbt sich umlaufend der Beckenumgang zu einer verfliesten Sitzbank, auf der die schlanken Holzstützen ruhen. Geometrisch abgestimmte Fliesenmuster in neutralem Weiß und Hellgrau erzeugen in Kombination mit hellen Holzoberflächen eine freundliche und sportive Atmosphäre. Neben der Sanierung der Oberflächen wurde der Bestandsschwimmhalle auch ein neues und angehobenes Dach aufgesetzt. Durch die Verschiebung der Trägerebene erhält das Mehrzweckbecken nun nicht nur mehr Raumhöhe, sondern wird über transluzente, seitliche Lichttaschen auch mit blendfreiem Tageslicht versorgt.

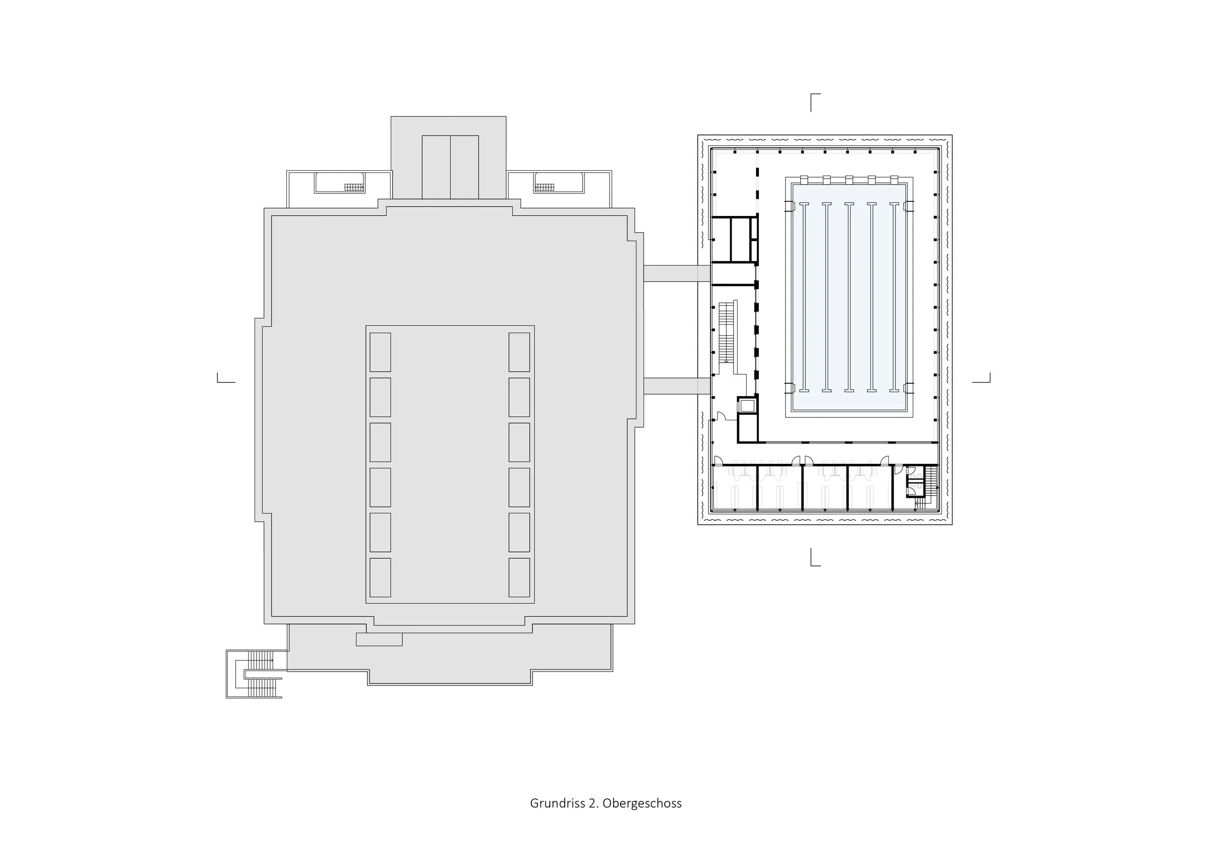
Der Neubau wird in Anlehnung an die Fassadengliederung und markante Dachkontur des Bestandsbades mit einer weit ausladenden hölzernen Dachscheibe und Oberlichtbändern konzipiert. Ein variierender Horizont zwischen Verglasung und Holzfassade umläuft den Baukörper und lässt die dahinterliegenden Funktionsbereiche – Halle, Garderobe, Foyer – ablesbar werden. Davor spannt bis unter das Dach eine begrünte Stahlkonstruktion, die sich nach oben horizontal verzweigt und die neue Trainingsschwimmhalle mit einem lichten grünen Schleier umgibt.

 

Projektbilder

 

Pläne

 

Projektdaten

Selektives Vergabeverfahren, 1. Preis
Auftraggeber: Stadt Wien, MA44-Bäder
Leistungsumfang: Generalplaner
Fertigstellung: 08/2024
Fotos: Hertha Hurnaus

Auszeichnungen: klima:aktiv Gold
wienwood25 - Holzbaupreis Wien
Shortlist: Mies van der Rohe Awards 2026