Erweiterung Schulareal Grabs

Neubau Kindergarten, Turnsaal und Schulerweiterung

 
 

Projektbeschreibung

Das Schulareal Feld in Grabs soll zu einem lebendigen Primarschulcampus weiterentwickelt werden. Neben der Erweiterung des bestehenden Primarschulhauses entstehen im Osten des Areals eine neue Einfachturnhalle sowie ein Doppelkindergarten. Zusammen mit den erforderlichen Aussenräumen bildet das Projekt die Grundlage für einen zukunftsfähigen Schulstandort in einer wachsenden Gemeinde.

Der nördliche Siedlungsrand von Grabs ist geprägt durch Einfamilienhäuser und niedrige landwirtschaftliche Gebäude, die den Blick in die Berglandschaft öffnen. Die neuen Bauten werden deshalb als eigenständige, klar zugeordnete Baukörper geplant und führen die feinkörnige Struktur am Übergang zum Landschaftsraum weiter.
Die ortstypische Satteldachform mit Dachüberständen wird bei allen Gebäuden aufgenommen.

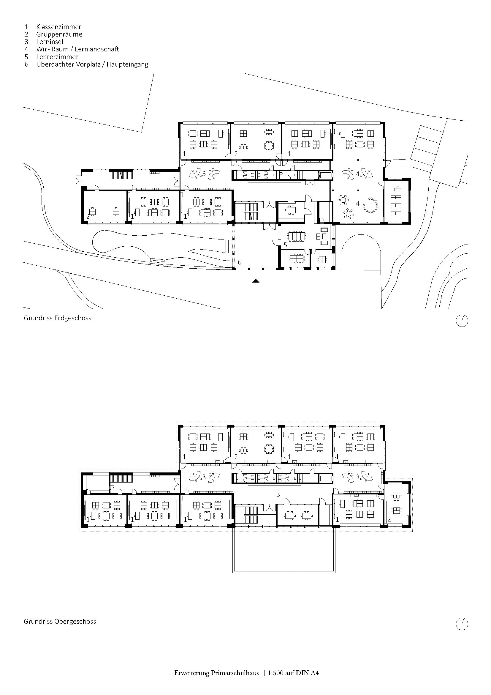
Die Erweiterung des Primarschulhauses erfolgt als präzise gesetzter Weiterbau des Bestands. Im Norden wird das Gebäude um eine zweigeschossige Achse ergänzt, die die bestehende Gebäudestruktur logisch fortführt. Die flach geneigte Satteldachform des Bestands wird aufgenommen und in einer zurückhaltenden, fein gefalteten Dachlandschaft weitergeführt.

Der eingeschossige Baukörper im Süden markiert den neuen Haupteingang und schafft gegenüber der neuen Wegeführung auf dem Gelände eine klare Adresse für das Schulhaus. Mit der Erweiterung wird das Schulhaus nicht nur räumlich, sondern auch organisatorisch erneuert. Die bisherige Gangschule über drei Geschosse erhält durch den neuen, gedeckten Haupteingang im Süden eine zeitgemässe Erschliessungslogik.

Die neue Einfachturnhalle liegt zentral im Areal und bildet einen verbindenden Baustein zwischen den bestehenden und neuen Schulgebäuden. Als kompaktes, oberirdisches Volumen mit Satteldach fügt sie sich selbstverständlich in die ortstypische Gebäudestruktur ein und stärkt die Gesamtfigur des zukünftigen Primarschulcampus.

Der Ersatzneubau des Kindergartens orientiert sich in seiner Setzung und Erscheinung an den ortsbildprägenden Merkmalen des ehemaligen Stallgebäudes. Die L‑förmige Gebäudetypologie bildet gut gefasste Aussenräume gegenüber dem benachbarten Bürgerheim und dem Stütlihus und stärkt die räumliche Ordnung des Areals. Der schlichte südlich angeordnete Vorbau des Treppenhauses unterstützt Hof- und Adressbildung.

Mit der Kapazitätserweiterung am Primarschulstandort Feld werden auch die Aussenräume neu geordnet und zu einem zusammenhängenden Campus entwickelt. Zwei Hauptzugänge – von der Staatsstrasse und der Bürgerheimstrasse – erschliessen das Areal und verbinden die einzelnen Gebäude zu einer klar lesbaren Gesamtanlage. Entlang eines neuen, verkehrsfreien Schulwegs entstehen Pausen-, Begegnungs- und Sportflächen, die sich gegenseitig ergänzen und vielfältige, sichere Spiel- und Bewegungsmöglichkeiten bieten. Rund um die Einfachhalle sind Aussensportflächen angeordnet; zusätzlich entsteht ein Generationenspielplatz, der ein attraktives Angebot für unterschiedliche Nutzergruppen schafft.

Der bereits revitalisierte Bachraum am Übergang zum nordöstlichen Landschaftsraum wird in das Aussenraumkonzept integriert und das wertvolle Natur- und Erlebnisfeld gestärkt. Zur Zonierung und Beschattung des Areals werden neue Bäume gepflanzt und mit lockeren Gehölzgruppen ergänzt, sodass der Campus mit der Zeit weiterverwachsen und sich natürlich entwickeln kann.Die Parkierung erfolgt in zwei separaten Anlagen, die eine gute Zugänglichkeit zu den Gebäuden gewährleisten und das Areal klar strukturieren.

 

Projektbilder

Pläne

 
 

Projektdaten

Planerwahlverfahren, 1. Rang
Projektpartner: Planikum, Baukom
Auftraggeber: Gemeinde Grabs
Visualisierung: k18